Architectural Detailing Projects

Precision construction documentation and execution planning across residential, healthcare, and large-scale residential developments.

Project Portfolio

Representative architectural detailing and construction documentation from completed projects.

Clinic Eichstätt – New Construction, Conversion and Refurbishment

Eichstätt, Bavaria, Germany

AR Design LLC provided full execution planning services (HOAI Phase LPH 5) for the new construction, conversion, and refurbishment of key medical areas within the hospital complex in Eichstätt, Bavaria.

The scope included the new construction and restructuring of the surgical department with three new operating theatres, the expansion of the emergency department, and the redesign of the central admission area. Particular emphasis was placed on integrating highly technical medical infrastructure, ensuring compliance with strict healthcare regulations, and coordinating multiple disciplines within a complex hospital environment.

Through precise detailing and structured coordination, the execution planning ensured constructability, cost control, and adherence to schedule, while maintaining the operational requirements of the clinic throughout the planning process.

Project Highlights

  • HOAI LPH 5 – Full execution planning responsibility
  • New surgical department with three operating theatres
  • Emergency department expansion and reconfiguration
  • Central admission area redesign
  • Highly technical medical infrastructure integration
  • Multi-discipline coordination in live hospital environment
  • Healthcare regulation compliance throughout
  • Detailed construction documentation for all building elements

This project demonstrates AR Design LLC's capability to deliver precise, regulation-compliant execution planning documentation for complex healthcare facilities under demanding operational conditions.

3rd Floor Plan

3rd Floor Plan

Patient Room Detail

Patient Room Detail

Patient Room Detail 02

Patient Room Detail 02

X-Ray Room Detail

X-Ray Room Detail

Architectural Rendering

Architectural Rendering

Senior Living Park, Feldkirchen

Feldkirchen, near Munich, Germany

The Feldkirchen Senior Living Park offers high-quality, safe, and comfortable living space for an independent life in old age. Located in a quiet setting on the green western edge of Feldkirchen, just outside Munich, the complex is ideally connected to the public transport network.

The new building comprises 58 senior apartments with one to three rooms, each featuring a balcony or terrace. The apartments are generously proportioned and designed to meet a wide range of individual needs. In addition, the ground floor includes two day-care units as well as spacious, multifunctional communal areas for leisure and social activities.

The entire building is fully barrier-free, allowing residents to move freely and safely even with limited mobility. An underground car park provides additional comfort and security. The health area includes multifunctional treatment rooms as well as a fitness studio for exercise classes and physiotherapy.

Project Highlights

  • 58 senior apartments – one to three rooms with balcony or terrace
  • Two ground-floor day-care units
  • Multifunctional communal areas and multi-purpose room with kitchenette
  • Fully barrier-free design throughout
  • Underground car park for residents
  • Health area with treatment rooms and fitness studio
  • In-house outpatient care service integration
  • Facade section and detail documentation

This project demonstrates AR Design LLC's ability to deliver barrier-free residential architecture with integrated care infrastructure, combining technical rigour with a human-centred design approach.

Ground Floor Plan

Ground Floor Plan

1st Floor Plan

1st Floor Plan

Facade Section

Facade Section

Construction Detail

Construction Detail

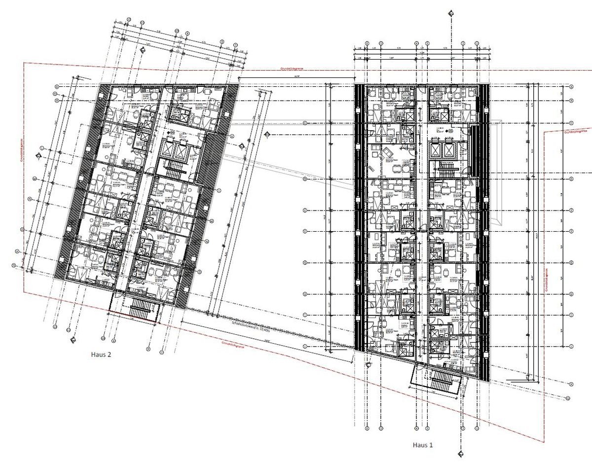
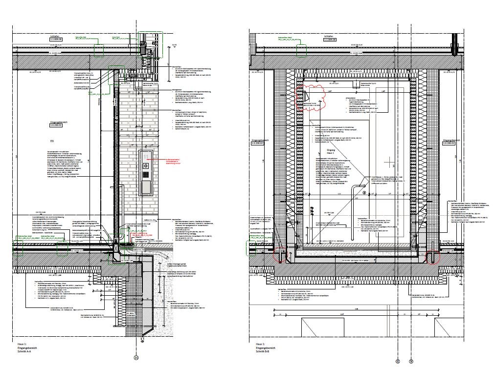
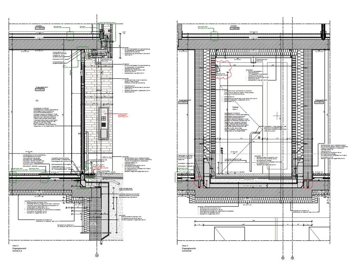
Z Ost – Zschokkestraße East, Munich

Munich, Germany

Located in the western part of Munich, close to the Westendstraße underground station, the Z Ost project forms part of a new residential quarter developed between Zschokkestraße and Wilhelm-Riehl-Straße. The guiding motto of the complex — "Together, at Home, Zschokkestraße" — captures its community-centred philosophy.

The Zschokkestraße East sub-area comprises 110 apartments and 17 co-living units, developed as a privately financed rental housing project with an underground car park of 69 spaces. Towards the outside, the residential block presents itself with clear, defined edges, while towards its centre it gradually dissolves—the strongly articulated, folded, and recessed volumes create several interconnected inner courtyards flowing seamlessly into one another.

Community plays a central role: in addition to the residential units, the project integrates a retail space, shared community rooms, and an on-site daycare centre.

Project Highlights

  • 110 apartments and 17 co-living units
  • Underground car park – 69 spaces, parking ratio 0.5
  • Articulated, folded building volumes with inner courtyards
  • North–south and west–east pedestrian permeability
  • Ground-floor retail space and shared community rooms
  • Integrated daycare centre
  • Comprehensive facade detailing and window details
  • Construction commenced spring 2021

This project demonstrates AR Design LLC's expertise in large-scale urban residential documentation, combining community-driven planning principles with technically rigorous construction detailing.

Concept

Concept

5th Floor Plan

5th Floor Plan

Construction Detail 01

Construction Detail 01

Window Detail

Window Detail

Window Detail 02

Window Detail 02

Facade Detail

Facade Detail

Facade Section

Facade Section

3D View

3D View

Photography

Photography

Single Family Residence

Residential

Night View – Pool Side

Night View – Pool Side

Day View

Day View

Night View

Night View

Terrace View

Terrace View

First Floor Plan

First Floor Plan

Second Floor Plan

Second Floor Plan

Section

Section

Need Architectural Detailing for Your Project?

From execution planning to high-fidelity construction documentation — we deliver precision at every scale.

Request a Consultation Architectural Detailing Service