Electrical Lighting System Installation Documentation
Florida, USA
Project Overview
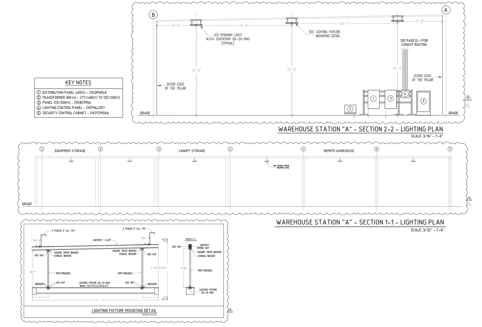
This project provides complete installation documentation for an LED-based electrical lighting system at a large commercial facility (WSA). The scope covers both indoor and outdoor luminaire installations, high-voltage and low-voltage circuit routing, and the design and integration of a Light Control Panel (LCP) with relay modules to manage zone switching and dimming.
Lighting plans were developed for interior spaces and exterior areas including surface-mounted, pendant, and Unistrut-mounted fixtures. Conduit routing uses rigid metal conduit (RMC) throughout the installation. The documentation package includes photometric studies for interior and emergency conditions, a full outdoor photometric simulation, total demand load calculations, and a job site photo record confirming as-built conditions.
Technical Scope
- ✓LED interior lighting plan — general and high-voltage areas
- ✓LED interior lighting plan — low-voltage areas
- ✓Building section lighting layout and fixture scheduling
- ✓Indoor photometric analysis and emergency lighting coverage
- ✓Outdoor photometric study and simulation
- ✓Light Control Panel (LCP) power feed from High Voltage distribution
- ✓Rigid metal conduit routing and Unistrut fixture mounting details
- ✓Total demand load calculations for lighting circuits
- ✓Site plan photometric layout for exterior compliance
- ✓Job site photo documentation of completed installation
Project Details
- Category
- Electrical Construction Documentation
- System Type
- LED Lighting / Control System
- Key Component
- Light Control Panel (LCP) with relay modules
- Conduit
- Rigid Metal Conduit (RMC)
- Mounting
- Unistrut channel support system
- Location
- Florida, USA