MEP Engineering Projects
BIM-coordinated MEP engineering design and electrical systems construction documentation — Florida, USA.
Representative MEP engineering and electrical construction documentation from completed commercial projects.
Automotive Retail Showroom
Full MEP documentation for a mid-scale automotive retail showroom — lighting, power distribution, EV charging infrastructure, and service building electrical systems.
Read More
Dental Clinic
Complete MEP and medical gas engineering package for a multi-operatory dental clinic — electrical, HVAC, plumbing, compressed air, vacuum, and medical gas distribution.
Read More
Full-Service Restaurant
Complete MEP documentation for a restaurant tenant improvement — lighting, power, HVAC, gas distribution, plumbing, and grease interceptor design.
Read More
Retail Fashion Store
MEP tenant improvement documentation for a boutique fashion retail store — coordinated lighting, power distribution, HVAC, and ventilation compliance.
Read More
Sports & Recreation Facility
Full MEP engineering for a sports facility café and bar — power, lighting, HVAC, sanitary, storm drainage, and water systems across indoor and outdoor zones.
Read More
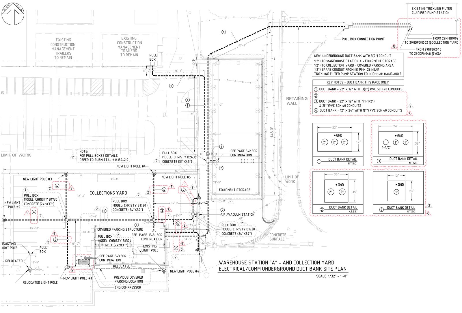
Underground Electrical Duct Bank
Technical documentation for underground electrical duct bank and conduit stub-up installation — concrete-encased PVC conduits, grounding systems, and job site photo records.
Read More
Electrical Lighting System
Installation documentation for an LED lighting system — interior and exterior fixtures, rigid conduit routing, Light Control Panel (LCP), and photometric records.
Read More
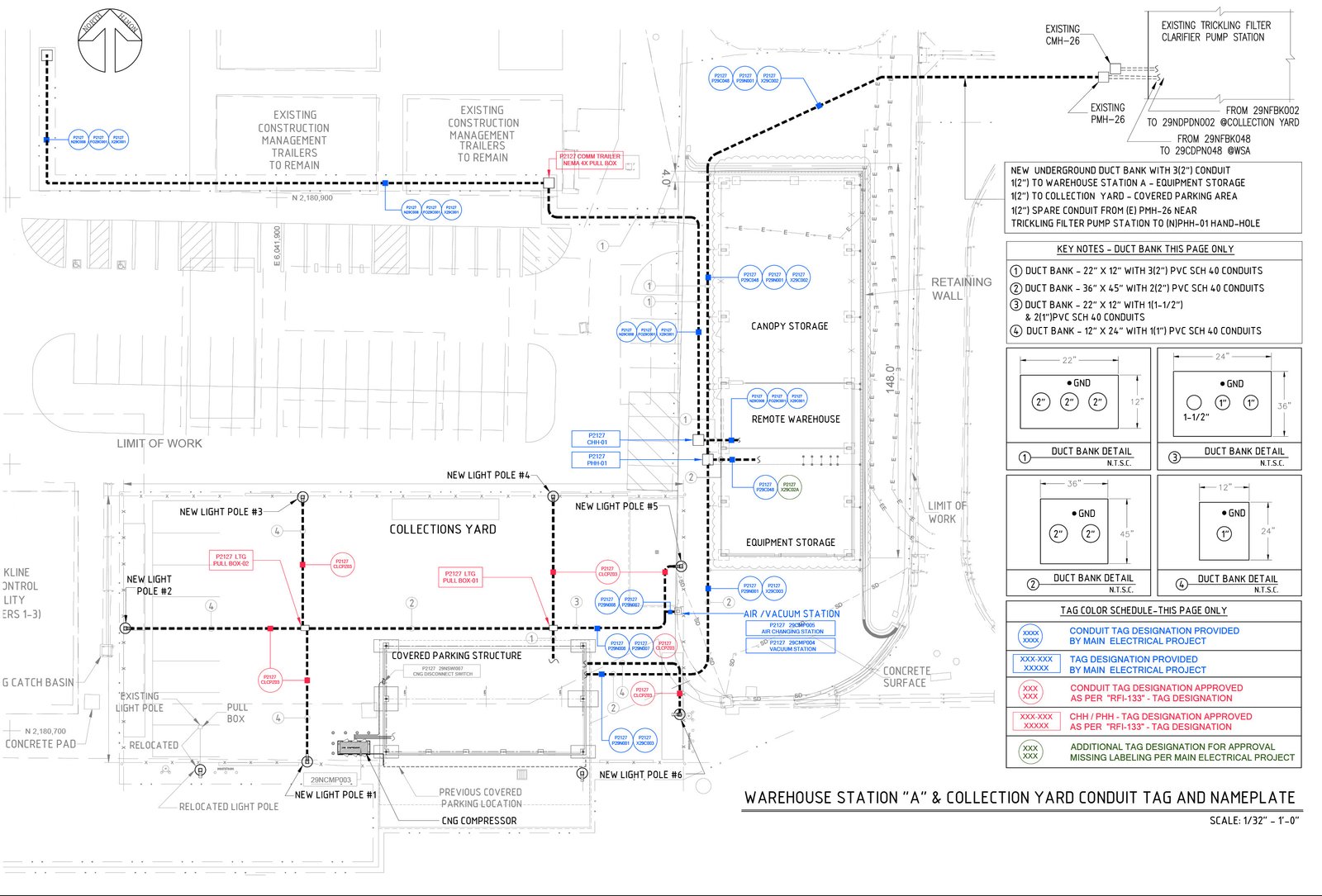
Electrical Tagging & Conduit Labeling
Comprehensive identification and labeling system for electrical infrastructure — duct bank and room tagging plans, riser diagrams, and custom nameplate designs.
Read More
Fiber Optic & Security Infrastructure
Underground single-mode fiber optic communication system — 24-strand cable routing, termination panels, PoE surveillance cameras, and access control integration.
Read More
CNG Compressor Electrical & Control System
Electrical power, emergency shutdown, gas detection monitoring, and alarm systems for a CNG compressor — hazardous location compliance and integrated safety controls.
Read MoreNeed MEP Engineering for Your Project?
Our team delivers precision-engineered, permit-ready documentation for any commercial build type.
Request a Review MEP Engineering Service